С террасой
Дом, где легко сочетать внутренний комфорт и общение с природой. Уютная терраса расширяет жилое пространство и становится любимым местом для отдыха. Наши продуманные проекты обеспечивают удобство повседневной жизни, а вы можете изменить планировку с учетом своих пожеланий.
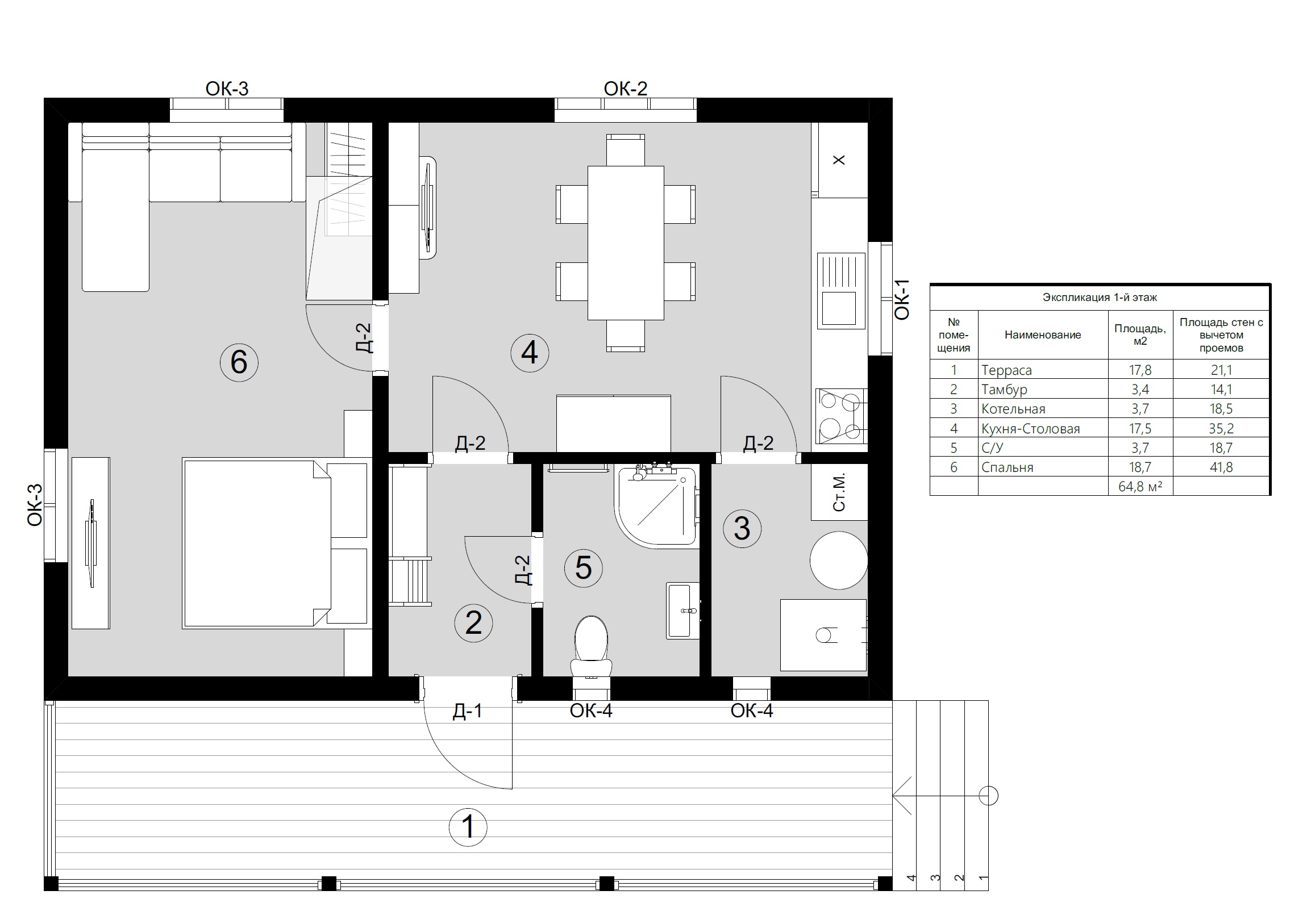
Проект 31
- Количество этажей: 1
- Площадь дома: 47м2
- Площадь террасы: 17,8м2
- Количество спален: 1
- Стиль: классика
- Гараж: без гаража
Проект 32
Просторный одноэтажный дом для большой семьи. В доме 2 спальни и просторный санузел, гостиная-кухня, с которой имеется выход на небольшую террасу, где можно отдохнуть в теплую погоду. Фундамент в проекте — свайный (25 свай), можно использовать и винтовые и забивные.
Проект 33
- Дом 54 м.кв
- Терраса 18 м.кв.
Проект 34
- Дом 54 м.кв
- Терраса 18 м.кв.
Каркасные дома с террасой — это современное решение для комфортной загородной жизни. Такой формат жилья сочетает практичность каркасной технологии и уют дополнительного пространства для отдыха на свежем воздухе.
Комфорт и функциональность для всей семьи
Каркасная технология позволяет построить дом с террасой в короткие сроки и без лишних затрат на фундамент. Дом получается тёплым, энергоэффективным и комфортным для проживания круглый год. Терраса становится естественным продолжением дома — местом для отдыха, семейных встреч и приёма гостей.
Удобная планировка с выходом на террасу
В каркасных домах с террасой легко реализовать продуманную планировку. Просторная кухня-гостиная с прямым выходом на террасу, уютные спальни и функциональные хозяйственные помещения делают дом удобным для жизни. Терраса может быть открытой или крытой, использоваться как летняя зона отдыха или дополнительное жилое пространство.
Строительство под ключ с индивидуальным проектом
Мы предлагаем строительство каркасных домов с террасой под ключ — от проектирования и составления сметы до чистовой отделки и сдачи готового объекта. Все решения разрабатываются индивидуально с учётом особенностей участка, пожеланий по архитектуре и бюджета.
Современный дом по разумной цене
Каркасный дом с террасой — это оптимальное сочетание стоимости, скорости строительства и комфорта. Вы получаете надёжный, эстетичный и долговечный дом, который идеально подходит для жизни и отдыха в Беларуси.


























