Барнхаусы
Стильные и лаконичные дома с характером и просторным интерьером. Современный дизайн и продуманные планировки помогут сделать ваш дом уникальным. Мы предлагаем гибкие решения, позволяющие адаптировать проект под ваш стиль и потребности.
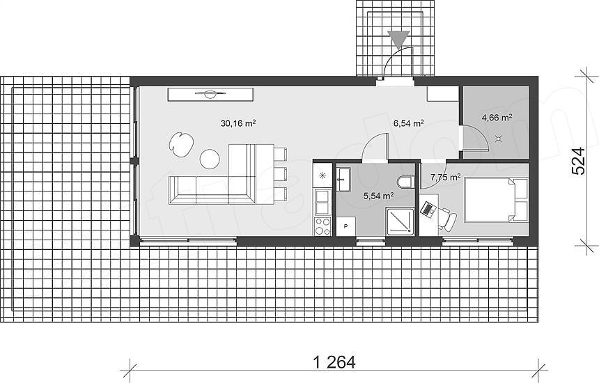
Проект 61
- Дом от 50 до 100 кв.м. это идеальное сочетание площади и функциональности.
- Дом одноэтажный — он безопасен для детей, подходит для пенсионеров и людей с ограниченными возможностями.
- Комнат 2 шт — это оптимальное количество для такой площади.
- Терраса создает чувство единения с природой.
- Габариты дома 5 на 13 метров.
- Панорамные окна придают дому современный вид.
Проект 62
- Второй свет придаст вашему дому солидность.
- Печка в доме создает уютную атмосферу.
- Дом одноэтажный — он безопасен для детей, подходит для пенсионеров и людей с ограниченными возможностями.
- С котельной в доме вы не будете переплачивать за коммунальные услуги.
- Пристроенный гараж защитит вашу машину от капризов погоды
- Панорамные окна визуально увеличивают площадь дома.
- В доме есть 5 комнат, но вы можете изменить их количество на этапе проектирования.
- Терраса придает дому эстетическую красоту.
- Длина дома 13 метров, а ширина 15.
Проект 63
- Комнат 3 шт — это оптимальное количество для такой площади.
- Панорамные окна визуально увеличивают площадь дома.
- Этот дом имеет один этаж — это позволят быстрее и проще его построить.
- Длина дома 5 метров, а ширина 10.
- Терраса создает дополнительное пространство для встреч и общения.
Проект 64
- Полезная площадь 35,2 м.кв
- Терраса 10,5 м.кв.
Проект 65
- Полезная площадь 40 м.кв
- Терраса 8 м.кв.
Проект 66
- Дом 70 м.кв
- Терраса 7 м.кв.
Проект 67
- Дом 198 м.кв
Барнхаус — это стильное и функциональное решение для комфортной загородной жизни. Такой дом сочетает минимализм, практичность и простор, создавая уникальную атмосферу уюта и современного дизайна.
Почему выбирают барнхаусы
Барнхаусы выделяются открытой планировкой, большими окнами и светлыми пространствами. Высокие потолки и лаконичные формы делают дом визуально больше и просторнее. Это идеальный вариант для семей, тех, кто работает удалённо, или любителей проводить время с друзьями на свежем воздухе.
Индивидуальный проект под ваши потребности
Барнхаус легко адаптировать под любые пожелания: мансарда, терраса, панорамное остекление, навес для авто. Планировка учитывает все нужды семьи: просторная кухня-гостиная, спальни, кабинет, санузлы и технические помещения.
Строительство под ключ
Мы предлагаем строительство барнхаусов под ключ — от идеи и проектирования до полной отделки и готового к проживанию дома. Профессиональный контроль на каждом этапе, качественные материалы и современные инженерные системы гарантируют надёжность и комфорт.
Барнхаус — это современный, стильный и функциональный дом, который делает загородную жизнь в Беларуси удобной, уютной и вдохновляющей.
























